WW2 - H.M.T. Britannic 1939 to 1947 - M.V. Britannic 1948 to 1960 - Page 2
Please Note: Firefox and some other Search Engines may not be suitable
Use Google Chrome for this Web Page to load perfectly!
Please Note: All ssMaritime
and other related maritime sites are 100% non-commercial and privately owned,
thus ssmaritime is NOT associated with any shipping
company or any other organisation! Although the author has worked and been
involved in the passenger shipping industry for well over 60 years, but due to
his old age and poor health, he was forced to retire. Yet, he has completed
well over 1,435 Classic Liners, Passenger-Cargo Liners as well as humble
converted C3 converted Migrant Liners, which has transported countless
thousands of folk to the new world, as well on vacations’. Amazingly,
ssmaritime.com has received 573.4 million visitors to date I trust the features
online will continue to provide Classic Liner and Ship enthusiasts both the
information they are seeking, but more so provide a great deal of pleasure and
relive many happy memories!

Thus a very thank you to the following ssmaritime supporters for sending me their wonderful
photographs & images for I could not have completed this feature to this point.
+John
Savage (
I am sorry but some of the images shown may not be of the highest quality, but they are the best that were available
Please Note: Due to the size of this M.V. Britannic feature, I had to divide it into two pages, thus on Page One I will cover her early years, from construction, launching, and her maiden voyage. Then we will take a look at her interiors and exteriors of her three classes, followed by her career of her Trans-Atlantic voyages and cruises until 1939, as her passengers services was somewhat cut short due to the War.
This page Part Two contains her duties
during World War Two, and is followed by her post war refit. She then returns
to her passenger services with a look, and her interiors have more of a new
‘Art Deco’ touch. We will then
follow her concluding days at sea, operating both Trans-Atlantic services and
her annual cruises until late in 1960, and I will end with some special items,
such as Souvenirs and Deck Plans with as well as her “Specifications
& Details”, etc.

* - The M.V. Britannic is seen at sea during the 1930’s
As World War Two was imminent, the
“Britannic” was requisitioned on August 27, 1939 whilst she
was returning to the
During the time she was at
H.M.T. Britannic Crew and Commanding troops on this voyage:
Ship’s Captain; A. C. Grieg O.B.E., R.D. R.N.R.
Chief Engineer; G. R. Montgomery.
Chief Officer; R. G. B. Wollatt.
Purser; A. J. Hurley.
Snr Asst Purser: P. Jowett.
Surgeon; S. E. Smyth.
Chief Steward; J. Smith.
Commanding Troops; Major-General E. P. Quinan.
Adjatant; Major
M. Glover, 14th
Asst Adjatant; Capt G. Wren, 12 F.F.R.
“Q” Staff; Major A. H. Snelling, R.I.A.S.C.
“ “ G. M. Dyer, 13 (D.C.O.) Lrs.
Baggage Officer; Major E. J. Boughton, R.I.A.S.C.
“ “ Major G. F. Webb, R.I.A.S.C.
Officer i/c Treasure Chest; Major E. G. Perry; 1-12 F.F.R.
Snr. Medical Officer; Major General D. S. Mills, I.M.S.
Asst Snr. Medical Officer; Colonel A.C. MaCrae, I.M.S.
Liasion Officer; Lt. Colonel K. H. Roundtree, I.M.S.
Hygiene Officer; Lt. Colonel J. R. D. Webb, I.M.S.
Ship’s R.S.M.; R.S.M. G. F. Weir, A. F. (1).
Whilst she was in Bombay the
“Britannic” was armed and she was fitted with one BL 6-inch Mk
XII naval gun for defence against surface craft, as well as QF 3-inch
20 cwt high-angle guns for anti-aircraft defence, thus she was
now defined as a (DEMS) a Defensively Equipped Merchant Ship. As soon as this
was completed she departed and headed back for
In January 1940 her superstructure had been
repainted from white to buff, and a pillbox had been built on each
wing of her bridge as protection for the deck officer on watch. Also at
the very same time, all

A very clear warning to SHUT UP about any of the ship’s details, etc
Crews were warned that disclosing information such as any ship movements would violate the Defence of the “Realm Act 1914” and would mean charges as well as imprisonment.
But in the

H.M.T. Cameronia
is seen at
Thanks to the American total stupidity, on
February 20, 1940 an anonymous telephone call was made to the New York City
Police Department warning that a bomb would be planted
aboard “Britannic”. NYPD officers searched the ship but
thankfully they found nothing, but that was not the point, for whilst the
During “Britannic’s”
westbound crossings she carried many refugees from central
The overseas evacuation of children was terminated after a U-boat tragically torpedoed the ‘Ellerman Lines’ ship S.S. City of Benares on September 17, 1940, sinking it within 31 minutes, and killing 258 precious lives, including 81 of 100 children on board.
In January 1940 the concert
pianist Harriet Cohen C.B.E. travelled on the
“Britannic” to begin a concert tour of the

World famous Pianist Harriet Cohen C.B.E.
Apart from musical Royalty, on the very same voyage, the “Britannic” also had on board in her forward stalls there were eight prize racehorses that had already been sold to powerful American buyers. Five of these horses had been owned by the famous ‘Aga Khan’ the other three by other’s. Movie mogul ‘Louis B. Mayer’ bought four of these. ‘Charles S. Howard’ had bought two, whilst ‘Neil S. McCarthy’ and ‘Gordon Douglas’ of Wall Street bought one.
Then in June 1940 the “Britannic’s” transported two passengers who were
in fact the most Royal of couples, they were
the “Earl and Countess of Athlone”
who joined the M.V. Britannic and headed for

Above we see the “Earl and the Countess of Athlone”
The fact was that it was; H.R.H. Prince
Alexander Cambridge (the First
Earl of Athlone) who was born
was born at
-
Left: HRH Prince Alexander Cambridge – Right: HRH Princess Alice
On the same voyage the Right Honourable
Mr. Jan Masaryk, who had been the Czechoslovak
ambassador to the
On an eastbound voyage in summer 1940 Britannic carried ‘hundreds’ of obsolescent French 75mm field guns to the UK, to reinforce defence against the threat of German invasion. One of her officers later recalled that they were stowed on her promenade deck.
In July the “Britannic”
took Noël Coward to
She then made one round trip to
On August 23, 1940 the “Britannic” was requisitioned again and she sailed via South Africa to Suez and back, then to Suez again in 1941, and thence to Bombay again and back via Cape Town to the Firth of Clyde, where she arrived on May 5. Her troop capacity was increased from 3,000 to 5,000.
She then made one round trip to

She is seen here in her war grey livery late in 1941 or 1942
In 1943, she served as the Command Ship of a
convoy to land troops in
Between November 1943 and May 1944 the Britannic
operated four transatlantic round trips: two to
In November and December
1944 Britannic made one round trip to
In September and October 1946 she sailed from
Liverpool via the Suez Canal to

H.M.T. Britannic
is seen passing through the
filled with soldiers heading home to the
She returned to the
From the outbreak of World War Two, H.M.T.
Britannic had carried a total of 173,550 persons, most being soldiers (including transporting 20,000
*********************
Having been returned to the
‘Cunard-White Star Line’ they had her fully overhauled and
re-fitted at the ‘Harland & Wolff’ yard
at ‘Bootle’ in
But, she was given a comprehensive refit
before she would re-enter her duties on the Liverpool to
Her accommodations were almost entirely rebuilt and enlarged including her A deck, which was from just in front of her aft funnel and covered promenade, was now closed in and her interior cabin space was extended to the full width of the ship to just aft of the end of the covered Promenade Deck above. First Class cabins were given private facilities, including many in Tourist Class, but all cabins had hot and cold running water. On ‘A Deck’ which was renamed ‘Main Deck’ new State Room Suites were added, thus upon completion, there were then six luxury Suites in all. Each Suite had a bedroom, a lounge and a spacious bathroom.
In addition, instead of her being a Three Class ship with 1,553 passengers, she would now become a Two Class Liner, and accommodate just 993 passengers, with 429 in First Class & 564 in Tourist Class, yet she still retained her crew of 500.
Her décor was modernised in the
post-war ‘Art Deco’ style. Also her Promenade Deck was
now fully glass enclosed from fore to aft of her superstructure. In addition,
the very best modern fire detection systems were installed. Her refit cost
In the UK an artist impression of her new look was already being sent out to travel agents, and in America special newspaper items were being released advertising her first departure as a new redesigned liner.

A
pre-release ‘Cunard-White Star Line’ postcard of the new look M.V. Britannic

< - The Newspaper advertisement, but still showing her previous image, for the new
“Britannic” had a fully glazed in Promenade
As soon as she was completed by Harland & Wolff, she was delivered to her owners as if she was a brand new ship, she was once again being prepared for her Maiden post war voyage and be re-crewed as she had to be ready by May 22, 1948 for departure.

+ - M.V. Britannic
is seen at Liverpool being made ready for her Maiden post war voyage to
Note her fully glazed in Promenade Deck, and also her now enclosed previous A Deck, now named Main Deck
M.V. Britannic departed on her Maiden
post-war commercial voyage on May 22, 1948 sailing from Liverpool, via Cobh to

+ - The
“Britannic” is seen during he Maiden Post War Voyage to Yew York

A Letter Card sent
during the Maiden Voyage to
As she entered

< - She is seen
here whilst she was at
On that first westbound
voyage “Britannic” carried 848 passengers, which
meant that her refurbished passenger accommodation was more than 80 percent
full. She departed
On an eastbound voyage six weeks later she carried 971 passengers, meaning that more than 92 percent of her berths were taken. Even during some of her winter crossings she had plenty of passengers.

R.M.S. Aquitania
is seen docked behind the M.V. Britannic at
Western Docks late
in 1948, the ‘
During a westbound crossing in January 1949 the “Britannic” carried 801, being an occupancy rate of more than 76 percent, which for the time was more than satisfactory, and she was doing far better that most of the other ships of her competition!

A fine aerial
photograph of the rebuilt “Britannic” arriving at
I will commence with the Promenade Deck as
there had been some considerable changes made including venue changes. Her main
decks were renamed somewhat, Promenade,
First Class
Cocktail Lounge:
This was previously the card room, but it had now been transformed into this magnificent and extremely popular Bar. Some of the previous features remained, such as that staggeringly beautiful ceiling, although some new hanging lighting was added, where the fire place had been was now a magnificent Bar with single posted stainless steel stools with red leather round seats atop. The floor had a more modern look, and although the same furnishings were used, but they were now in a plush red tones!

Above &
below: Two fine views of the new Cocktail Bar

The Lounge:
Previously the ships colour scheme tended to lean to the blue tones, but now she was turning more into the more fashionable reds, being the more preferred Art deco tones.
The perfect blending of tapestried old English charm and modernity has become so typical of the “Britannic’s” new look. She is full of expression of rich beauty, and that is obviously seen here in the First Class Lounge. Her stage was still there as was the fine timber work; the large arched windows looked out onto the Promenade Deck enhancing the natural brightness of the spacious and inviting room. Those magnificent tan marble columns were impressive, and the grand piano was at its regular place, but the Persian rugs had been replaced by more suitable carpets for the time.
The Lounge being centre of the ship, provided a genial and a pleasant setting for Concerts, or showing Movies, and there was a parquetry floor in the centre (under the carpets) for Dancing. This beautiful venue was of course the most popular room on the ship.

Like the perfect ‘Cunard’ liner fresh flowers would always be a feature in all of her lounges, just as can be seen in this image.
Next along the portside was that famous long venue the …
Long Gallery:
The Long Gallery remained very similar, but with a number of updates and colour changes, again gone were the blue tone and in was the red ones. Although very similar to the earlier venue, if you look closely at the two there were certainly dramatic changes made.

The Long gallery looking simply sublime
On the starboard side where there used to be the Drawing Room, this beautiful venue had now been turned into the Card Room but sadly I have not been able to locate any images.
Of course just aft was the newly enlarged …
Smoking Room:
This room had a wonderful new look, with its blue curved leather sofas in one section located along a wall that was wholly blue leather backed. There were touches of red in the fittings, such as parts of the walls and columns, as well as the carpets, etc. Very attractive were the glass panel dividers with birds painted on them. This venue had so much detail, it was a stunning, yet an amazingly a relaxing venue, that had a fine Bar!
The previous aft ‘Verandah’ had been fully enclosed and the forward bulkhead completely removed and it had now become part of this much larger and beautiful Smoking Room. This venue was given a brand new look more modern than most of the other venues. In fact it was rather trendy for its day, as some of the furnishings were more squared off.
The new and somewhat renamed Smoking Room was bright, cheerful and attractively modern and it certainly had a refreshing individuality, without a doubt having a more club-like atmosphere. The venue now was ideally suited for playing cards, conversation or just quiet relaxation. It was now one of the largest rooms on board, and this venue was divided into two distinct sections, one that contained an unusually shaped curved cocktail Bar conforming with the general decorative scheme. Opposite, a fireplace set beneath an oil painting featuring the English countryside.

Above &
below: The wonderful Smoke Room

Promenade Deck:
The Promenade as I had stated earlier had been fully glazed in until the very end of Boat Deck above, which made it a very popular deck as it became more of an indoor space, although the upper sections of the windows could open to allow air to enter and keep it fresh during the warmer months. The deck was well furnished with deck chairs and tables and also had ample space for some shuffle board towards the aft section, should the weather be somewhat inclement.

* - Promenade Deck is seen just after it was enclosed whilst at ‘Harland & Wolff’
And the deck chairs and tables, etc, had not as yet been returned to the ship
This deck was previously A Deck, and it had a promenade aft of the forward staterooms, however during the refit all accommodations were greatly enlarged and had bathrooms fitted, and the area where the promenade used to be had been fully enclosed and new staterooms were fitted, thus accommodations now covered the full width of the ship.
Staterooms & Luxury Suites:
All First Class staterooms were without a doubt not just spacious but most luxurious, for during the refit they were completely enlarged and redesigned and refurbished. The great majority were outside and the vast majority had private bathrooms and all cabins on board had mechanical ventilation which could be controlled by the passenger’s.
In some rooms the wardrobes were recessed into the bulkhead, thus providing additional floor space. But beds in the superior staterooms could be folded into these recessed walls when not in use, converting the room into a sitting room, this feature was also available in the Luxury Suites, but the Suites were generally purchased with two rooms, one being the bedroom, and the other as a dedicated lounge, which was generally the more popular choice by the more wealthy guests.
Forward there were a number of two berth cabins, with a lower and an upper berth, but with private facilities and a shower, except for just one inside cabin. The rest of the cabins were much larger and were twin bedded all with a full bath room having a bath tub.
In all there were seven 2 two berth outside cabins, ten 2 two berth inside cabins, one 2 two berth inside cabin (no bath). Twenty seven twin bedded outside cabins and six twin bedded inside cabins.

A typical twin bedded cabin with a full bath room, note the place beds could be folded away
Amidships there were the six Luxury Suites and each Suite had two rooms, such as a bedroom, a lounge and a spacious bathroom. Those on the port side were room numbers 24-26, 28-30 and 32-34, those on the starboard side they were rooms 27-29, 31-33 and 35-37.

Above & below: Two views of the Luxury Suites,

Of course this deck contained the forward Lobby with its two stairwells and the middle Elevator (Lift), which just aft of amidships was the second First Class Lobby.
This was a most spacious Foyer as it contained a great deal, for this area happened to be the location for the Information Office, or the Pursers Office, and many other offices, such as the Maitre D’ as well as the Entertainment Director, etc, which were all located on the port side. Located just forward of the aforementioned was the Ships Doctors surgery and Waiting Room. On the starboard side were two further counters for other enquires, although during cruises one of these, the larger counter was used as the Tours Office. Located forward in the middle surrounding the Elevator was the First Class Boutique and General Store, whilst the rest of this deck was again dedicated to cabins.
This was previously C Deck, and of course the Location of two important venues. The Lobby, which was the First Class Entrance Hall, thus the very first place passengers would see of the ship as they stepped on board.
Lobby - Entrance Hall:
Her walls were generally beige in colour, but there were also beautiful dark timber works on both sides, such as the doors and the planter box below the huge mirrors beside the two doors on each side, and the thick timber rounded frames. In the Lobby there are a number of fine red leather lounge chairs, beside each stairway on its exterior side is a square pillar also of the same dark timber, which does look very much like mahogany, but I cannot be absolutely sure. The carpets are grey and beige squares with two tone red surrounds, looking somewhat more modern. But very striking are the stair well balustrades, as these are made of glass and it had the same timber handrails as features in the Lobby, and the same colour four lines with in the glass running up horizontally, making these two stairwells quite magnificent!

Starboard view looking forward of the Restaurant Lobby & Entrance Hall
Restaurant:
The new look Restaurant certainly had a considerable makeover, such as the dome had been completely reshaped and was somewhat lower that it was before the war, and it looked more streamlined. It now had new carved smaller panels inset in each section, and was most attractive. The ceiling contained large square panels with six dark panels along the exterior, which could have contained speakers and square decorative lighting fixtures just on the inside making the ceiling pleasant without it being overbearing.
However, although the many changes in this fine venue, one thing remained as it was from the very day she departed on her maiden voyage in June 1930, and that were those beautiful timber Dining Room chairs.

The original Cabin Class Dining Room chairs placed
on board in 1930
The Restaurant was the ultimate of luxury, and it felt like you walked into the “Ritz Hotel” in London, the staff and stewards were immaculately dressed and the Sommeliers were always close at hand to assist with your fine wine choices.

An overall view of the magnificent Restaurant

A more intimate view of guests enjoying a fine Dinner with the Sommelier at hand
as well as their waiter at the ready should he be needed for anything

A Dinner Menu from
May 19, 1955

This is a Dinner
Menu from a Cruise on July 11, 1958
-
A Luncheon Menu with a cover at last, for July 30, 1960
Of course this was
also her final year in service

A fine photograph
of the post war M.V. Britannic berthed in beautiful colour
*********************
Tourist Class
We are now going to look at the new look Tourist Class, which was of a high standard indeed.
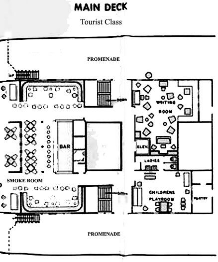
Far aft of the First Class Promenade Deck, is an opening for a hold, and then there is a housing which contains a tourist Class facility on a deck below, but on the top of is their Sun/Sports Deck.
This deck has space for open air sports facilities, as well as sun baking as there is room for sun lounges, etc. I am sorry no images are available, but it was a pleasant deck indeed.
Outside there is an extensive covered Promenade deck, ideal for relaxing, playing shuffle board, and also part of it is used for dance parties.

A Main Deck Plan for this area
Inside, there is the narrow lobby that has an elevator located in the centre along the forward section, and the two stairwells are aft on the two exterior walls next to the doors out to the deck.
Writing & Children’s Play Rooms:
Just forward of the lobby, on the portside was a well-furnished writing room, and on the starboard side was the Children’s Playroom.

The Writing Room -
I am sorry this was the best that could be found!

Children’s Playroom
Smoke Room:
Directly aft was the Smoke Room, complete with
it’s Bar that was located along the forward wall.

The Smoke Room and Bar
Forward of the Room was the bar and the ceiling along the sides was scalloped, but it was flat in front of the Bar, being a stand-up-Bar. On both sides there were brown leather Sofas and Arm Chairs with low mahogany tables, with other furnishings having patterned upholstery armchairs, with square tables as well as other deep cosy arm chairs with a plain upholstery with a small round timer table. This continued into the aft section of the room.
This deck once again offered sufficient covered deck space for relaxation, but inside there was the delightful and beautifully furnished Lounge.
The Lounge:
The room had windows on three sides allowing ample light to enter the room during the day. And it offered the very highest of quality of furnishings, with fine sofas, high backed lounge chairs, and cosy arm chairs, a variety of low round walnut and regular square walnut tables with a lighter topping. All seating the finest of floral tapestries in shades of blue and tan, and this made this venue simply a beautiful looking room.
The centre wall which surrounded a cargo hold was covered with some of the finest of lighter timbers, making this venue was greatly loved by her passengers!


The original plan Third Class Lounge on B-Deck with the surrounding covered Promenade
The Cinema:
Thus they gutted the interior of the Lounge and installed a new Tourist Class Movie Theatre and added a projection room on the starboard side, with the screen along the starboard side.

The new plan of
the Tourist Class Cinema on A Deck

This was preciously C Deck, But the Dining Room was also renamed and it became the ‘Restaurant’.
The Restaurant:
Here also they retained the original high quality furnishings from 1930, and again were retained the very same fine timber chairs as there are in the First Class Restaurant. The venue was warm and friendly with the delightful lighter timbers used throughout the venue. And like the other venue, here also the service was exceptional, and the menu was of a very high standard!

Accommodations:
Cabins were located on both Restaurant and B Decks and were generally single, twin bedded and three berth staterooms. There was no doubt that ‘Cunard’ ensured that the keynotes for the Tourist Class staterooms were exceptionally well fitted and arranged to include every possible detail conductive to good living, all staterooms had large wardrobes, dressing tables beds with reading lights, and especially designed carpets and rugs. Most Tourist Class rooms also had a private toilet and a shower.

A single Stateroom

Twin bedded
Stateroom

A twin bedded
cabin, but as it had an upper fold away berth, it could be used as a three
berth cabin

Looking at the new
spacious post 1948 rebuilt aft Tourist Class section of the M.V. Britannic
*********************
M.V. Britannic was kept relatively busy in her
first year and her passenger numbers were very good. Obviously with Cabin Class
having been renamed First Class made a huge difference, for ‘Cabin
Class’ to those who enjoyed the finest in travel, was just not good
enough, for it simply did not sound right, “Oh we travelled Cabin
Class”, that certainly is not the same as, “We sailed First Class
of course” now that means something, and it was certainly paying off for
‘Cunard’!
A little more than a year after her first post
war departure she was on one of her Trans-Atlantic voyages and on July 4, 1949
the “Britannic” rescued two ‘Estonian’ refugees mid-Atlantic. It turned out that they had built a
33 ft sailing yacht called the ‘Felicitas’
and had commenced their voyage from the Baltic coast in the then
Soviet
Then in November 1949 “Britannic” whilst departing for a Trans-Atlantic Crossing, she lost one of her anchors in some really rough weather whilst she was still in the River Mersey, thus she had to return to port and her departure had to be delayed in order for her spare anchor to be fitted.
And of course at the very end of 1949 with the very last of the ‘White Star’ shares having been purchased by the ‘Cunard Line’ they now had completely taken over the remainder of the old ‘White Star Line’ and tragically that wonderful old name of ‘White Star’ would now completely disappear.
No matter what; the “Britannic” remained in her original ‘White Star’ livery and continued to fly her ‘White Star’ flag, but the only difference being, now for the first time since Cunard having joined ‘white Star in 1934, the White Star would now fly below the ‘Cunard’ flag, for up to now it had always flown above it!

On June 1, 1950 the M.V.
Britannic and the ‘United States Lines’ cargo
ship “Pioneer Land” collided head-on in thick fog near
the ‘Ambrose Lightship’. “

The “Britannic” sustained
very minor damage and she continued her voyage to
In May
1952 “Britannic” transported the American women’s
golf team to
In
Amazingly, in January 1955 ‘Cunard’ withdrew the slightly new M.V Georgic from service, leaving “Britannic” as the very last former ‘White Star Line’ liner in service still flying the ‘White Star’ flag.

An aerial image of the great ‘White Star Line’ survivor, M.V. Britannic in the 1950’s
In 1953 and 1955 M.V. Britannic suffered fires, both of which were safely extinguished. The 1955 fire was in her number four hold on an eastbound voyage in April. 560 bags of mail, 211 items of luggage and four cars were destroyed, partly by the fire and partly by water used to extinguish the fire.
In December 1956 Cunard announced that from
January 1957 it would transfer “Britannic” to the route
between Liverpool and
In July 1959 ‘Cunard’ dismissed M.V. Britannic’s Master, Captain James Armstrong. He was only months away from being promoted to command R.M.S. Queen Mary. His trade union, the Mercantile Marine Service Association, said it was preparing legal action against ‘Cunard’. ‘Armstrong’ said ‘Cunard’ had given him the choice of resignation or dismissal. Both sides refused to reveal why he had been dismissed.
Transatlantic passenger traffic was seasonal. In the 1950s, as in the 1930s, operators of passenger liners used on seasonal cruises to try to keep their ships fully occupied through the year.
On January 28,
1950 “Britannic” left

Above &
below: Programme of Events from Friday 17 to Sunday
19 February, 1950

By 1951 much of the similar ports of call were
included, but this time

^ - M.V. is seen in the
By February
1952 “Britannic’s” winter cruise became an exciting
66-day tour to the
Her 1955, 66-day Cruise departed on January 28, and she visited 20 countries and 24 ports with fares again commencing from just US$1,275 per person.
Ports of call: New York to 1 Funchal - MADEIRA, 2 Casablanca – MOROCCO, 3 Gibraltar – GRIBRALTAR, 4 Tangier – TANGIER, 5 Valletta – MALTA, 6 Larnaca – CYPRUS, 7 Haifa – ISRAEL, 8 Alexandria – EGYPT, 9 Rhodes – DODECANENESE ISLANDS, 10 Istanbul – TURKEY, 11 Dardanelles – TURKEY,12 Athens – GREECE, 13 Dubrovnik – YUGOSLAVIA, 14 Venice – ITALY, 15 Messina – SICILY, 16 Naples – ITALY, 17 Villefranche – FRANCE, 18 Barcelona – SPAIN, 19 Palma – BALEARIC ISLANDS, 20 Algiers – ALGERIA, 21 Malaga – SPAIN, 22 Lisboa – PORTUGAL, 23 Cherbourg – FRANCE, 24 Southampton – ENGLAND, back to New York.

< - M.V. Britannic is seen at anchor in

< - The M.V.
Britannic is seen at
Fares for “Britannic’s” next 66-day cruise in January 1956 also commenced from $1,275, and although this cruise was to include a visit to Cyprus in February, but this section had to be cancelled due to the state of emergency as Greek Cypriot separatists who were fighting against British rule.
Cunard had planned another 66-day cruise for
January 1957, but in December 1956 they decided to cancel this cruise and said
that the “Britannic” would remain on the Trans-Atlantic
service for those two months. Of course the reason being entirely due to the
then unsettled situation at that time in the
But she did depart on another cruise from an
icy

Above &
below: The brochure cover, map and itinerary of the
cruise from inside

On January 22, 1960, Cunard’s M.V.
Britannic departed from


+ - The M.V. Britannic is seen at
Cunard had scheduled
the “Britannic” for 19 transatlantic crossings in 1961.
But on May 9, 1960 suddenly the crankshaft in one of her main engines cracked,
forcing her to remain in
When she did return to service, somehow
her future suddenly seemed to be very uncertain, and it certainly was, for on
August 15, 1960 the ‘Cunard Line’ announced that they had decided
to withdraw the M.V. Britannic at the end of the year. An Announcement said
that the Company’s decision had been accelerated by uncertainties
resulting from the present unofficial crew strike that involved the Company
with serious losses. This was combined with the already very onerous settlement
agreed with the unions that by itself meant the addition of about £750,000 to
the Company's annual crew wages bill. And of course this was also combined to in
the recent costly ship’s machinery troubles with the crankshaft damage
that caused her to be held up at

+ - This is the ‘Huskisson Dock’ at
M.V. Britannic (left) is berthed at Cunard’s
with the R.M.S. Sylvania (right) berthed the Canadian berth.
M.V. Britannic was being made ready for her very
last ever Trans-Atlantic voyage ever, and she departed Liverpool for

The M.V. Britannic
is seen at Pier 92 New York during her final visit on November 24, 1960

A view of her Boat Deck from the Bridge wing on the portside on November 24, 1960
After a rather sad stay in
M.V. Britannic received a rather solemn reception
to say the least, as she sailed up to ‘Princess Landing Stage’ at
The wonderful “Britannic” had completed 275 peacetime and wartime voyages and given so many passengers, servicemen, nurses and her crew countless memories.
At the time, there was a 62 year old liftman that
actually was on her maiden voyage, a ‘John Prescott’ who
stated: “She is a wonderful ship, so comfortable
and so steady, even in the very worst of seas.”
Then there was a head waiter, a ‘Charles Leach’, who had been with ‘Cunard’ for a good 42 years and he attended to the Captain's table for the very last time and he told the story, which this is just a small part; “Things are much less formal on ships these days, but on the “Britannic” it never changed. I’ll be very sorry to see her go.”
What saddened so many of the steward’s in the First Class Dinning Room was that during this last voyage a beautifully decorated Christmas Tree had been erected in the Dining Room, just near the main doors but of course it would never celebrate ‘Christmas’ as she would be a very lonely ship, with only a skeleton crew on board, and they would be eating in the crew dining room.
Just a few days after her arrival in Liverpool
‘Cunard’ sold the M.V. Britannic to ‘Thomas W. Ward’
breakers at
Breaking up operations commenced early in February 1961 and once her interior fittings were stripped, these were sold at auction. Breaking up of the “Britannic” was completed by the end of 1961.
The “Britannic” was the very last
ship to fly the famous ‘White Star Line’ house flag, and she had
been of immense value to her country during war time, and to her owners.

+ - Her
2 … In 1957 ‘Cunard Line’
had announced that it had reserved a berth at ‘John Brown’s’
at their

The 21,989 GRT,
R.M.S. Sylvania completed in 1957
The Index is below the next Image.
*********************

This is an artistic postcard of the M.V. Britannic being sold on board during her final days
*********************
M.V. Britannic INDEX:
Page One: Construction,
Maiden Voyage, Cabin, Tourist & Third Class Interiors services from 1930 to
1939.
Page Two: WW2 service, post war refit & her years from 1947 to 1960 (This Page).
Page Three: Deck Plans & Souvenirs, etc.
Page Four: M.V. Georgic, her newer
sister 1932 to 1956.
“Blue
Water Liners sailing to the distant shores.
I watched them come, I watched
them go and I watched them die.”
Featuring over 1,435 Classic Passenger Liners, Passenger-Cargo Liners & Classic Cruise Ships!
Or ENTER HERE
For interest: Sadly an email service to ssMaritime is no longer available, due to the author’s old age and chronic illness as well as being disabled, etc. In the past ssMaritime received well over 120 emails per day, but Mr. Goossens can no longer handle same. He sincerely regrets this!
*********************
ssMaritime.com & ssMaritime.net
Where the ships of the
past make history & the 1914
built M.S. Doulos Story.
The Author has
been in Passenger Shipping & the Cruise Industry for well over 60 years
In addition he
was the founder of “Save the Classic Liners Campaign” in 1990.
Please Note: ssmaritime and associated sites are 100% non-commercial and the author seeks no funding or favours of any shape or form, never have and never will!
Photographs on ssmaritime and associate pages are by; the author or from the author’s private collection. In addition there are some images that have been provided by Shipping Companies and private photographers or collectors. Credit is given to all contributors. However, there are some photographs provided to me without details regarding the photographer/owner concerned.
This notice covers all pages; although, and I have done my best to ensure that all photographs are duly credited and that this notice is displaced on each page, that is, when a page is updated!
ssMaritime is owned
& © Copyright by Reuben Goossens - All Rights Reserved